One Thousand Museum, a $300 million condo tower designed by world renowned architect Zaha Hadid, will soon be gracing the Downtown Miami skyline.1000 Biscayne Blvd in downtown Miami will ideally display the new 62-story tower. Offering super spacious full floor plans, the tower will be set between 900 Biscayne and Ten Museum Park, taking over a prime spot now occupied by a gas station.
Preconstruction
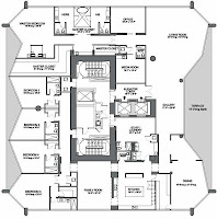
With only 83 residences ranging from 5,400 to 11,200 square feet, each residence will have 3 parking spaces assigned plus its own helicopter landing pad which is the only residential tower in Miami with this feature.
Prices for the luxury apartments are expected to start between $4 and $12 million for a half-floor unit, rising to $30 million for a full floor. The two top floor 5-BR/ 7-Bath duplexes units are being offered at more than $50,000,000 each.
All units will be offered fully-finished, including flooring, custom closets and high-end lighting. Construction is expected to be completed in 2016.
The Developer
1000 Museum is an amazing project designed by internationally renowned architect Zaha Hadid. Pritzker Award winner, Stirling Prize winner, and appointed Dame Commander of the Order of the British Empire by Queen Elizabeth, her architecture is very distinctive, futuristic and recognized around the world.
Her firm has built mostly in Europe, Asia and Middle East. One Thousand Museum is her first American project and highly anticipated by the super-wealthy from around globe.
Features
• Sun deck with a billiards room, a cardio room, a screening room
• Rooftop event spaces, a cigar lounge, a relaxation lounge
• Oversized hot tubs, hot and cold plunge pools, spa
• Indoor pools, outdoor pools, sauna, steam room, cabanas
• Three restaurants and a nightclub
• The first residential building with a helipad
Contact ElectricWeb-Southeast for more details on this project.








No comments:
Post a Comment